CENTERING UNIT

Name:

CENTERING UNIT

Ref:

UCD


MATERIALS

HARDNESS

STANDARD

HOW TO ORDER

55-57 HRC UCD + W

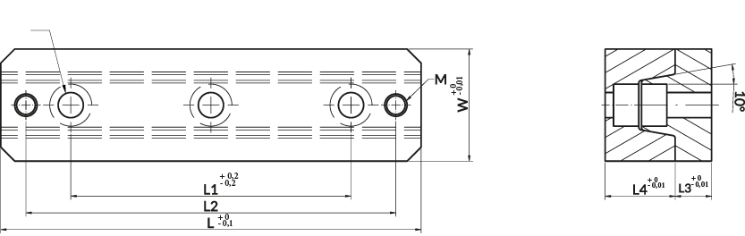
DRAWINGS

TECHNICAL DATA

TECHNICAL DATA 2

DRAWINGS 2

DOWNLOAD

INFORMATION


Last views

UCBD

CENTERING UNIT

UCD

CENTERING UNIT

UCG

CENTERING UNIT